Návrh zadarmo
Plánujete pokládku dlažby a chcete si byť istí, že všetko sadne na centimeter presne? Využite našu bezplatnú službu kladacieho plánu a grafického návrhu. Pomôžeme vám rozvrhnúť dlažbu tak, aby výsledok nielen dobre vyzeral, ale bol aj technicky správne prevedený.
Čo je kladací plán a prečo ho využiť?
Viete, ako to bude vyzerať
Vďaka kladiacemu alebo grafickému návrhu získate jasnú predstavu o výsledku ešte predtým, než začnete realizáciu – s istotou, že všetko bude ladiť.
Menej chýb, viac istoty
S návrhom sa vyhnete zbytočným chybám pri pokládke, nepresnostiam v rozmeroch i dodatočným nákladom na opravy alebo úpravy.
Ušetríte čas aj peniaze
Návrh vám pomôže lepšie plánovať, rýchlejšie rozhodovať a šetriť čas aj peniaze pri samotnej pokládke.
Stačí vyplniť jednoduchý formulár, priložiť plánik alebo náčrt a my sa vám ozveme.
- Zdarma
- Na mieru vášmu projektu
- Od odborníkov na betónové prvky
Čo je potrebné vedieť:
- Minimálna veľkosť dláždenej plochy musí byť 30 m² alebo dĺžka plota minimálne 10 bm (bežných metrov).
- Návrh pripravujeme len pre výrobky zo zľavovej skupiny A a C. Tieto skupiny nájdete priamo pri produktoch na www.diton.cz.
- Ponuka sa nevzťahuje na bežné betónové výrobky ako PARKETA, ÍČKO, VLNKA (v prírodnej farbe), stratené debnenie a kanalizačné prvky.
1) Vyplnenie dopytového formulára
Zvoľte konkrétne produkty z našej ponuky, môžete priložiť jednoduchý okótovaný náčrt plochy (napr. záhrady, príjazdové cesty)
2) Spojenie s technikom
Po odoslaní dopytu sa vám ozve náš technik. Preberie s vami detaily, doplní chýbajúce podklady a potvrdí zadanie návrhu.
3) Vytvorenie kladacieho plánu
Zahŕňa kladací plán, konštrukčné riešenie, informácie o výrobkoch a cenovú ponuku.
4) Vytvorenie grafického návrhu
Pokiaľ si nie ste istí výberom typu alebo farby, pripravíme vizualizáciu do vašej fotky – uvidíte, ako bude výsledok vyzerať priamo u vás doma.
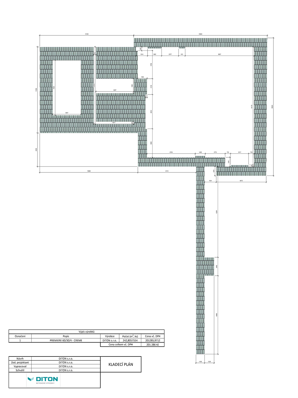
Kladiaci plán
Inšpirujte sa návrhmi, ktoré sme vytvorili na mieru našim zákazníkom.
Grafický návrh
Inšpirujte sa návrhmi, ktoré sme vytvorili na mieru našim zákazníkom.
Často kladené otázky
Spracujeme pre vás kladací plán a základnú vizualizáciu plochy, ktorá vám pomôže lepšie si predstaviť finálny výsledok. Návrh zahŕňa výber formátov, farieb a typov dlažby či prvkov z nášho sortimentu.
Áno, návrh je úplne nezáväzný a zadarmo – slúži ako podpora pri rozhodovaní, ako by mohla vaša realizácia vyzerať. Nie je podmienený okamžitým nákupom.
Ideálně nám zašlete jednoduchý okótovaný náčrt plochy (např. zahrady, příjezdové cesty), vybrané výrobky z našeho aktuálního ceníku a fotografii místa. Pomůže nám i krátké shrnutí vašich představ nebo inspirace.
Našou snahou je zaslať vám návrh v čo najkratšom čase, konkrétnu lehotu dodania návrhu vám oznámime podľa individuálnej náročnosti projektu a stavu dodaných podkladov.
Ak budú nejaké údaje chýbať, alebo ak nebudeme schopní vašu požiadavku z nejakého dôvodu vyriešiť, budeme Vás kontaktovať.
Áno, návrh môžete odovzdať svojmu dodávateľovi alebo stavebnej firme ako podklad na realizáciu. Je vytvorený tak, aby bol zrozumiteľný aj pre remeselníkov.
Áno, pokiaľ počas návrhu zistíte, že by ste chceli iný formát, farbu alebo štýl, návrh radi upravíme. Zmena požiadavky na iný výrobok alebo farbu je spoplatnená – pri kladiacom pláne čiastkou 500 Sk s DPH, pri grafickom návrhu (vizualizácie) čiastkou 1000 Sk s DPH.
Získam len vizualizáciu, alebo aj konkrétne odporúčania na produkty?
Součástí návrhu je vždy doporučení konkrétních produktů z našeho sortimentu včetně názvů, barev a povrchových úprav.
Áno, k návrhu pripravíme nezáväznú cenovú ponuku podľa platného cenníka vrátane DPH.
Hotový návrh vám zašleme e-mailom vo formáte PDF. Na prianie ho môžeme pripraviť aj na vytlačenie alebo vám ho predstaviť pri osobnej konzultácii na našej expedícii.




